Design
UK Office Interiors provide office and commercial workspace design. Using the latest design software, we are able to provide you with a professional and precise office design.


An office is an extension of your corporate identity, so should be carefully planned and designed to suit your business.
Not only will we will plan an improved office layout for your employees and clients to enjoy but we will also finish it off with excellent quality furniture choices, new flooring, decorating and styling to suit your corporate image.
Our designers can see the potential of a space and will utilise it as best they possibly can, so that you benefit from a well-planned office with an improved layout and interior.
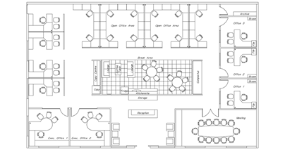
Through both our 2D and 3D visualisations we can create the optimal office layout to boost your office productivity and overall improve your working environment.
For more information regarding our office solutions, please call our sales team on 01142 835 825.
Our Staff

Dan Ford
Director specialising in the estimation and project management of our works.

Craig Pinder
Director specialising in the estimation of the design and build.

David Wragg
Account Manager.

Kenny Pang
Account Manager.

Chris Sims
Security Services Manager.

